Sway, Lymington, Hampshire

4 bedroom Detached house for sale

£780,000

  • 4 bedroom
  • 2 bathroom
  • 3 reception

Key Features

  • Ground floor cloakroom
  • Sitting room with patio doors opening out onto the rear garden
  • Driveway with ample parking
  • Primary bedroom with en-suite bathroom and fitted wardrobes
  • Westerly facing garden
  • Conservatory, offering lovely views of the rear garden
  • Within easy walking distance of the village centre, amenities and mainline train station
  • Double garage with two remote controlled electric up and over doors
  • EPC Rating: D

Description

Charming four-bedroom detached house offered for sale, featuring a double garage with sink and door giving direct access to the rear garden, and a driveway providing ample off-road parking. Conveniently located within walking distance of the local village centre, amenities, and mainline railway, this property offers a perfect combination of practicality, comfort, and accessibility.

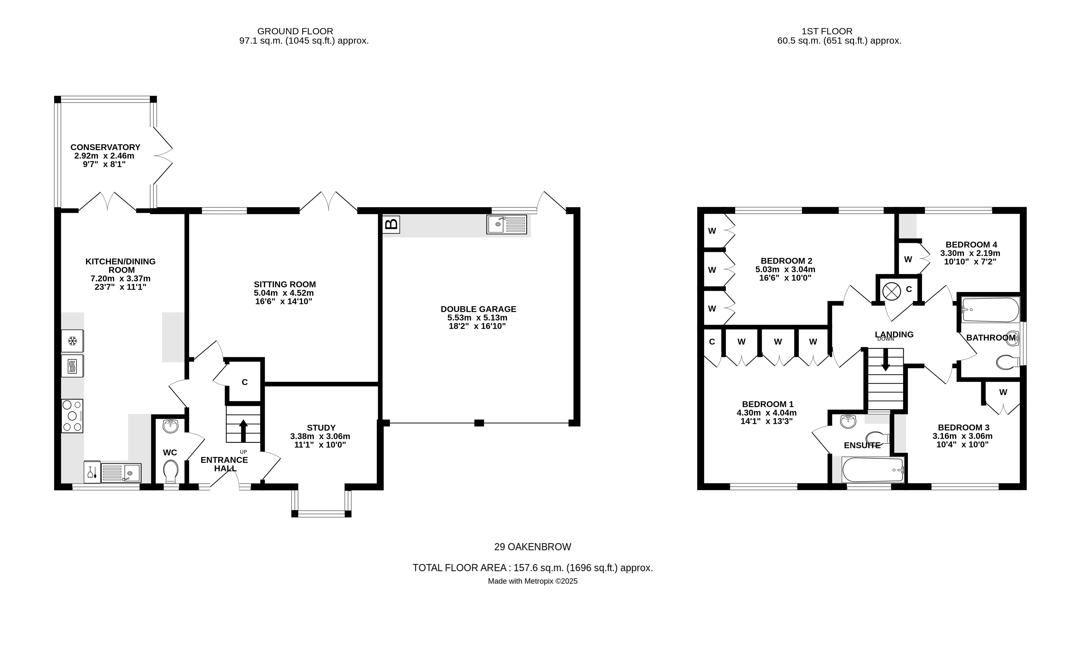
A covered porch leads into the property, opening into a welcoming entrance hall complete with a useful storage cupboard and stairs rising to the first floor. To the left of the hall is the cloakroom, fitted with a front aspect window, WC, and hand wash basin. To the right is the study, featuring a large front aspect bay window that allows plenty of natural light to flood the room, an ideal space for working from home or quiet reading. The spacious sitting room enjoys a rear aspect window along with rear doors that open directly onto the garden, providing pleasant views and an easy flow to the outdoor space. The kitchen/dining room benefits from both a front-aspect window and rear doors leading into the conservatory, ensuring the room feels bright and well-connected to the garden. The kitchen is fitted with a comprehensive range of integrated appliances, including an induction hob, oven with extractor hood, dishwasher, fridge/freezer, washing machine, and a one-bowl sink unit with mixer tap. The layout offers ample space for family dining and entertaining.

The first floor includes a landing cupboard housing the hot water tank and provides access to all bedrooms and the family bathroom. The primary bedroom is a generously sized room featuring a front aspect window and excellent built-in storage, including plentiful cupboards and wardrobe space. It also benefits from a private en suite bathroom, fitted with a bath, WC, hand wash basin, and a front-aspect window providing natural light. Bedroom Two is a bright double room with two rear-aspect windows and fitted wardrobes. Bedroom Three features a front aspect window and fitted wardrobes, while Bedroom Four includes a rear aspect window along with fitted storage, making it ideal as a bedroom, nursery, or study. The family bathroom is well appointed, offering a side aspect window, bath, WC, hand wash basin, and a heated towel rail, creating a practical and comfortable space for everyday use.

The front garden boasts a long driveway, providing ample off-road parking and bordered by a lawned area along its length. The property also benefits from a double garage, with two electric remote controlled up and over doors, and includes a single bowl sink unit with hot and cold taps, rear aspect window and a pedestrian door giving direct access to the rear garden, offering practical utility and storage space.  There is a wooden gate to the left of the house, providing pedestrian access through to the rear garden, which is fully enclosed by fencing and shrubbery, offering privacy and a safe space for children or pets. It features a paved terrace ideal for outdoor seating and entertaining, with the remainder mainly laid to lawn. There is a large shed and the garden enjoys a sunny westerly aspect. 

This delightful property is located within the popular village of Sway. Nestling on the Southern edge of the New Forest National Park, Sway is a fine example of a quiet yet thriving village community, renowned for its friendliness. The village offers a useful mainline rail connection (London Waterloo approximately 100 minutes) together with a range of shops, a highly regarded primary school, two public houses and a popular Tennis Club. The Georgian market town of Lymington, famed for its river, marinas, yacht clubs, boutique shops and coastline, is within an easy four-mile drive over the forest. The neighbouring New Forest village of Brockenhurst, again with a mainline rail connection, offers further leisure, shopping and educational amenities, and a popular 18-hole championship golf course.


Location


Floorplan

Floorplan

EPC

EPC for Sway, Lymington, Hampshire

Fells Gulliver New Forest

125 High Street
Lymington
Hampshire
SO41 9AQ

Similar Properties

St Annes Gardens, Lymington, Hampshire
For Sale

St Annes Gardens, Lymington, Hampshire

4 Bed Terraced House For Sale
Guide price £490,000
Downton, Lymington, Hampshire
For Sale

Downton, Lymington, Hampshire

5 Bed Detached house For Sale
Guide price £1,250,000
Sway, Lymington, Hampshire
For Sale

Sway, Lymington, Hampshire

4 Bed Detached house For Sale
Guide price Guide Price £735,000