Southampton Road, Lymington, Hampshire

3 bedroom Town house for sale

£500,000

  • 3 bedroom
  • 1 bathroom
  • 3 reception

Key Features

  • Well equipped kitchen/breakfast room and separate utility room
  • Through sitting/dining room with bay window and woodburner
  • First floor master bedroom and two further second floor bedrooms
  • Spacious first floor family bathroom with roll-top bath and separate shower cubicle
  • Beautifully presented and benefits from character features throughout
  • Within easy walking distance of Lymington High Street and local amenities
  • Residents parking scheme is through Hampshire County Council/Mi Permit. £55 per year, per car. Day visitor passes available to purchase for when friends and family visit
  • EPC Rating: D & Council Tax Band: D
  • Low maintenance west garden with different seating areas, ideal for entertaining and a useful insulated workshop/store

Description

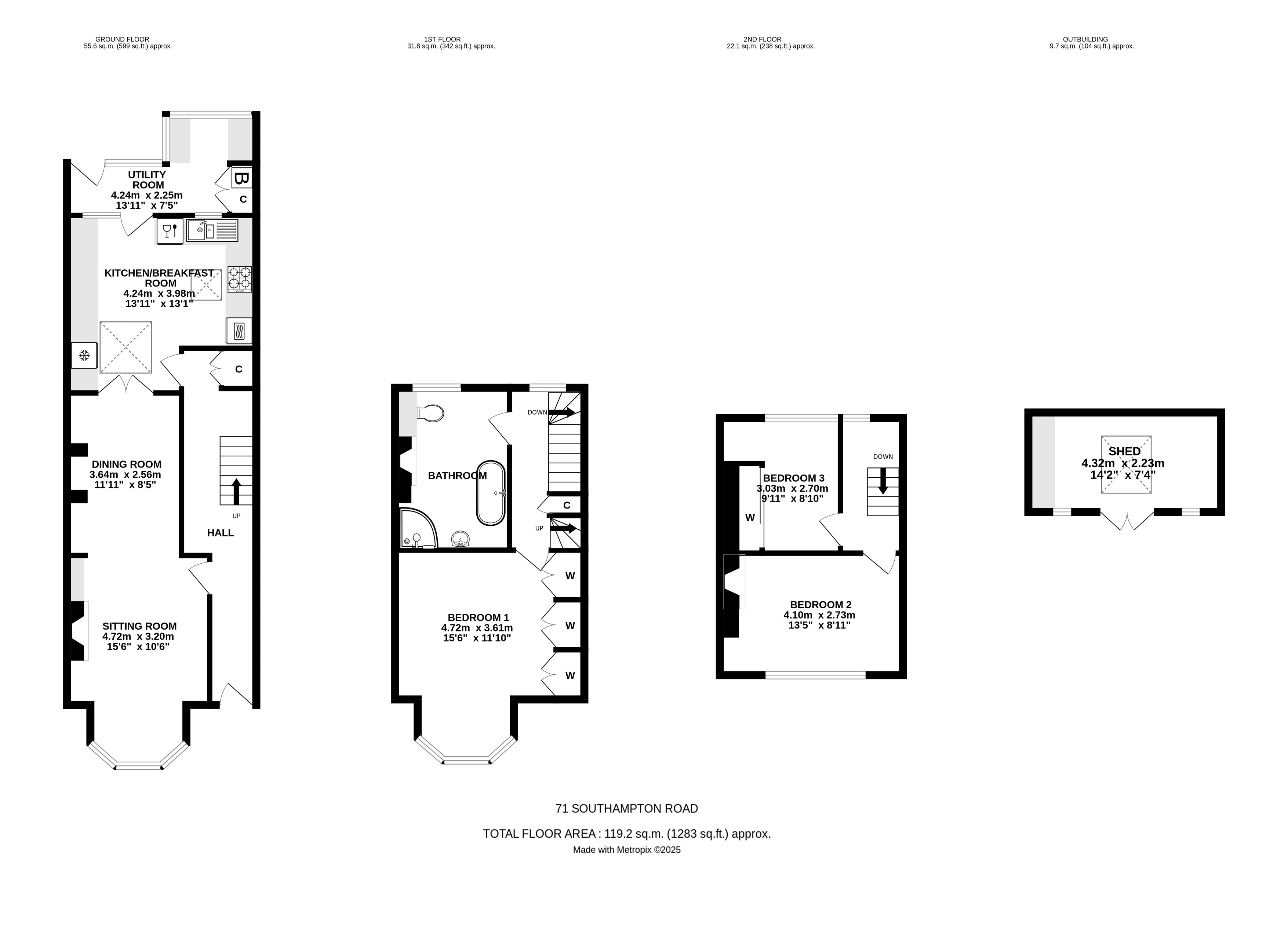
This charming three bedroom period townhouse is ideally located within a short level walk of Lymington High Street. The property offers spacious and well presented accommodation throughout, with character features and a practical layout perfectly suited to modern living.

Front door leading into the entrance hall with cloaks cupboard and stairs rising to the first floor. Door to the left into the sitting room which features a large front aspect bay window and an attractive woodburner, creating a welcoming space that flows seamlessly into the dining room. There is a range of inset shelving and cupboard in both the sitting and dining area, providing ample storage. Glazed doors lead through to the kitchen/breakfast room which is fitted with a comprehensive range of floor and wall mounted cupboards and drawer units with under cupboard lighting, complemented by ample work surfaces. Inset one and a half bowl single drainer sink with mixer tap over and tiled splashbacks. Integrated appliances include a four-ring gas hob, integrated eye-level double electric oven, fridge/freezer and new dishwasher. Tiled floor. Two windows to the rear aspect, roof lights and glazed door opening through to the utility room, which has a range of cupboard units and space and plumbing for both a washing machine and tumble dryer. Cupboard housing the wall mounted gas fired central heating boiler. Windows to the rear aspect and door leading out to the rear garden. 

First floor landing with window to the rear aspect and stairs rising to the second floor. Master bedroom with triple built-in double wardrobes, a period feature fireplace, and a large bay window to the front aspect. Spacious family bathroom with free standing roll-top bath with claw-feet and central "telephone style" hand-held shower attachment. Fully tiled shower cubicle with sliding doors and mixer shower. Low level WC, pedestal wash hand basin with taps. Chimney breast with period feature fireplace, inset shelving, heated towel rail and window to the rear aspect. 

Second floor landing with window to the rear aspect. Bedroom two with window to the front aspect and period feature fireplace. Bedroom three has built-in wardrobes  with sliding doors and window to the rear aspect. 

To the front of the property, there is a small area suitable for plants pots and a paved path leading up to the front door. Outside light. The rear garden has two levels. There is a patio area adjacent to the rear of the property with space for table and chairs. raised beds. outside tap. Steps with feature lighting leading up to the decked area with flower bed borders and ample space for patio furniture, making this a great entertaining space. There are various plants, trees and shrubs interspersed throughout the garden and there is a useful insulated wooden workshop/store with log store area and roof light that has potential for power to be connected.

There is residents parking along Southampton Road. The residents parking scheme is through Hampshire County Council / Mi Permit and is £55 per year per car. You can also purchase day visitor passes for when friends and family visit.

The property is close to Lymington High Street, the sailing clubs and the marinas. The beautiful Georgian market town of Lymington has many independent shops and a picturesque Quay, deep water marinas and sailing clubs. Lymington has numerous highly regarded restaurants and designer boutiques and is surrounded by the outstanding natural beauty of the New Forest National Park. To the north are the New Forest villages of Brockenhurst and Lyndhurst and Junction 1 of the M27 which links to the M3 for access to London. There is also a branch line train link into Brockenhurst Railway Station (approximately 5.5 miles) which provides a half-hourly service to London Waterloo with a journey time of approximately 90 minutes.


Location


Floorplan

Floorplan

EPC

EPC for Southampton Road, Lymington, Hampshire

Fells Gulliver Estate Agents

125 High Street
Lymington
Hampshire
SO41 9AQ

Similar Properties

Western Road, Lymington, Hampshire
For Sale

Western Road, Lymington, Hampshire

3 Bed Terraced House For Sale
Guide price £450,000
Grosvenor Mews, Lymington, Hampshire
For Sale

Grosvenor Mews, Lymington, Hampshire

2 Bed Ground floor flat For Sale
Guide price £295,000
Hordle, Lymington, Hampshire
For Sale

Hordle, Lymington, Hampshire

3 Bed Detached bungalow For Sale
Guide price £515,000