Sway, Lymington, Hampshire

4 bedroom Detached house for sale

£665,000

  • 4 bedroom
  • 2 bathroom
  • 3 reception

Key Features

  • Kitchen/breakfast room and utility room
  • Conservatory with views of rear garden
  • Large sitting room and separate dining room
  • Master bedroom with fitted wardrobes and en suite bathroom
  • Family bathroom with separate cloakroom
  • South westerly rear garden
  • Double garage and driveway parking
  • Within walking distance of the village centre and the open forest
  • EPC Rating: D

Description

This charming and well positioned four bedroom detached family home is quietly tucked away in an attractive cul-de-sac and just a short walk from the village centre and the open forest. This property offers spacious and versatile accommodation throughout, complemented by a private and secluded south westerly facing rear garden. Additional benefits include generous off street parking and a double garage, making this an exceptional opportunity in a highly sought-after location, with no forward chain.

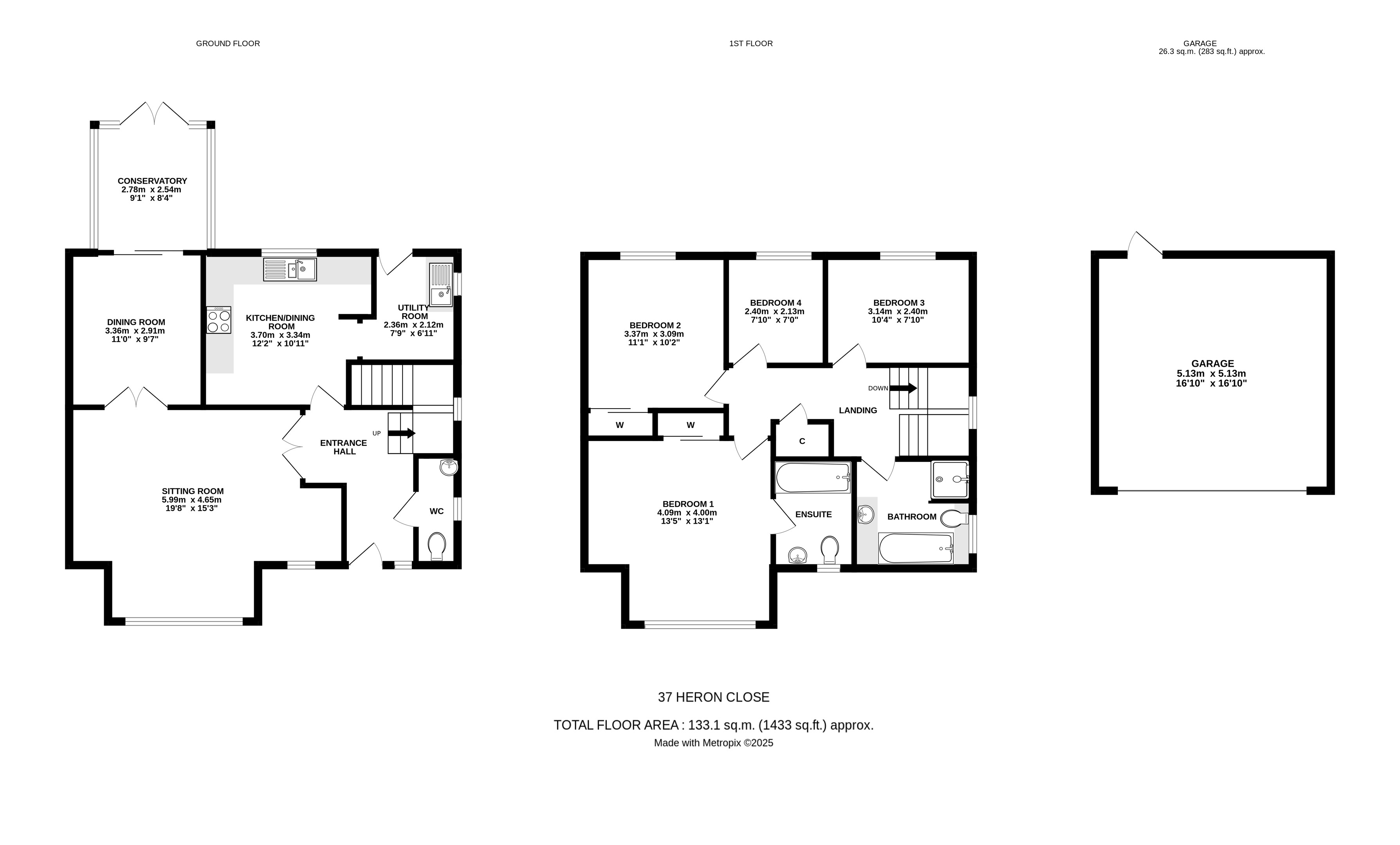
A covered porch shelters the front entrance, opening into a welcoming hallway with stairs rising to the first floor. To the side, a well-appointed cloakroom features a WC, hand wash basin and side aspect window. Double doors from the hallway lead through to the generous sitting room, beautifully lit by a large front aspect window and centred around the fireplace with stone hearth. Further double doors from the sitting room open into the dining room, which in turn provides access via sliding doors to the conservatory, a delightful space overlooking the rear garden. The kitchen/breakfast room offers a practical and well-designed layout, fitted with a range of floor and wall-mounted units, space for tall fridge freezer, oven and dishwasher, tiled flooring, an inset one and a half bowl sink with mixer tap and a rear aspect window framing views of the garden. Opening through to the utility room, providing additional storage, is an inset single-bowl sink with mixer tap, space for washing machine and a rear door giving access to the garden and side entrance, making this space ideal for use as a boot room if desired.

The stairs lead past a side aspect window to the first landing. The master bedroom enjoys a large front aspect window, double fitted wardrobes with sliding doors, and a private en suite bathroom complete with bath, WC, wash hand basin and a front aspect window. Bedroom two includes fitted wardrobes and a rear aspect window, while bedrooms three and four both enjoy elevated views over the gardens through their rear aspect windows. The family bathroom is fitted with a bath, stand alone shower unit, WC, wash hand basin and benefits from a side aspect window.

The property is set back within its plot, approached via a charming front garden with mature trees and hedging, creating a strong sense of privacy. A driveway leads to the  double garage and provides ample off-road parking, while a path from the driveway gives access to the front entrance and continues around the gated side entrance to the rear garden and utility access. The rear westerly facing garden is predominantly laid to lawn, with a patio area immediately adjoining the conservatory and utility room, ideal for alfresco dining and entertaining. Mature shrubs, trees, and fencing enhance the garden’s secluded and tranquil atmosphere, creating a private and peaceful outdoor retreat.

This delightful property is located within the popular village of Sway. Nestling on the southern edge of the New Forest National Park, Sway is a fine example of a quiet yet thriving village community, renowned for its friendliness. The village offers a useful mainline rail connection (Sway to London Waterloo in approximately 100 minutes) together with a range of shops, a highly regarded primary school, two public houses and a popular Tennis Club. The Georgian market town of Lymington, famed for its river, marinas, yacht clubs, boutique shops and coastline, is within an easy four-mile drive over the forest. The neighbouring New Forest village of Brockenhurst, again with a mainline rail connection, offers further leisure, shopping and educational amenities, and a popular 18-hole championship golf course.


Location


Floorplan

Floorplan

EPC

EPC for Sway, Lymington, Hampshire

Fells Gulliver New Forest

125 High Street
Lymington
Hampshire
SO41 9AQ