Court Close, Lymington, Hampshire

2 bedroom House Under Offer

£440,000

  • 2 bedroom
  • 2 bathroom
  • 1 reception

Key Features

  • Freehold house completely refurbished two years ago
  • Beautifully presented two-bedroom retirement cottage, exclusively for the over 55’s
  • Allocated parking space
  • Private patio area overlooking the communal gardens
  • Ground floor bedroom
  • Ground floor shower room
  • First floor bedroom with en suite bathroom
  • Beautifully maintained communal gardens with open views backing onto Woodside Fields
  • Within easy reach of Lymington High Street, Fox Pond shops and local amenities
  • EPC Rating: C

Description

This beautifully presented two bedroom retirement cottage, exclusively for those aged 55 and over, benefits from allocated parking, a private patio area, and the convenience of a ground floor bedroom and bathroom. Ideally positioned within easy reach of Lymington town centre and the shops and amenities at Fox Pond, the property offers comfortable, independent living in a desirable and well connected setting.

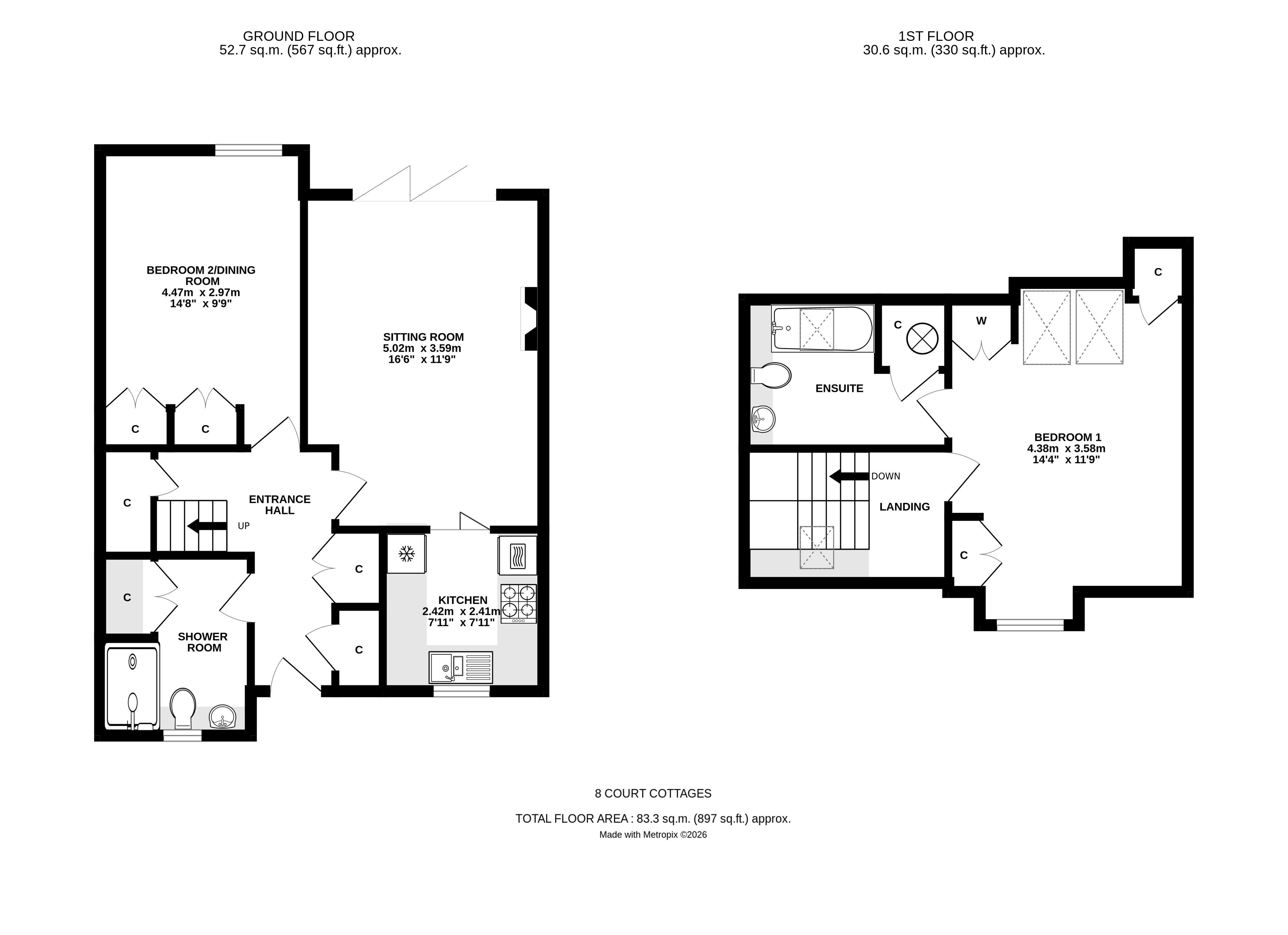
The front door opens into a welcoming entrance hall, featuring useful built in storage cupboards on either side and stairs rising to the first floor. To the right, a door leads into the spacious sitting room, which is enhanced by a feature fireplace and bi-folding doors opening directly onto the private patio and beautifully maintained communal gardens. A new electrically operated sun-blind is fitted. Leading from the sitting room, the completely refurbished kitchen enjoys a front facing aspect and is well appointed with a comprehensive range of floor and wall mounted units. Integrated appliances include an oven, microwave, fridge/freezer and dishwasher. A cupboard contains a new high efficiency Worcester Bosch gas boiler.

The ground floor bedroom, currently arranged as a dining room, overlooks the rear garden and benefits from fitted wardrobes, offering flexibility of use. The immaculately presented ground floor shower room features a front aspect window, a shower cubicle, WC and hand wash basin, together with a generous storage cupboard providing additional space and plumbing for a washing machine.

The first floor landing provides access to the principal bedroom, a generously proportioned and light filled room with front aspect windows and additional Velux rooflights. This bedroom is further enhanced by fitted wardrobes and a private en suite bathroom, comprising a bath with handheld shower, hand wash basin and WC, along with an airing cupboard containing the completely new hot water cylinder.

Court Cottages are accessed via Court Lodge yet remain entirely separate from the main home, offering a sense of privacy and independence. The cottage benefits from a private patio area overlooking the beautifully maintained communal gardens, as well as an allocated parking space. The gardens themselves enjoy delightful open views and back onto the peaceful Woodside Fields

The cottages are professionally managed by Sullivan Lawford. The annual maintenance charge is approximately £2,348, payable in two half-yearly instalments of £1,174. This comprehensive service includes buildings insurance, an Apello 24-hour careline, external decoration, gutter clearance, external window cleaning, upkeep of the communal grounds, and the services of the on-site manager.

The property is well located in a quiet over 55's development that is within easy access to Lymington Town Centre with its wide array of shops, eateries and bars, Woodside Gardens, The Salt Marshes and Lymington Train Station. The beautiful Georgian market town of Lymington, has many independent shops and a picturesque quay, deep water marinas, and sailing clubs. Lymington has numerous highly regarded restaurants and designer boutiques and is surrounded by the outstanding natural beauty of the New Forest National Park. To the north are the New Forest villages of Brockenhurst and Lyndhurst and Junction 1 of the M27 which links to the M3 for access to London. There is also a branch line train link to Brockenhurst Railway Station (approx. 5.5 miles) which provides a half-hourly service to London Waterloo with a journey time of approximately 90 minutes A new electrically operated sun-blind is fitted. 


Location


Floorplan

Floorplan

EPC

EPC for Court Close, Lymington, Hampshire

Fells Gulliver Estate Agents

125 High Street
Lymington
Hampshire
SO41 9AQ