Sway Road, Brockenhurst, Hampshire

4 bedroom Semi-detached house for sale

£665,000

  • 4 bedroom
  • 2 bathroom
  • 3 reception

Key Features

  • Large modern fitted kitchen/dining room with bi-fold doors opening out to the covered terrace area
  • Sitting room with feature fireplace, open plan to a second reception room
  • Study/utility room and cloakroom
  • Four first floor bedrooms, the master with en-suite bathroom with shower and separate bath
  • First floor family bathroom
  • Few minutes level walk of the village centre
  • Extended and refurbished throughout
  • Private rear garden with covered terrace area
  • Large external storage with adjoining smaller store room
  • EPC Rating: C & Council Tax Band: D

Description

This charming property has been extended and modernised to provide spacious and beautifully presented accommodation and benefits from a covered terrace area and private garden. 

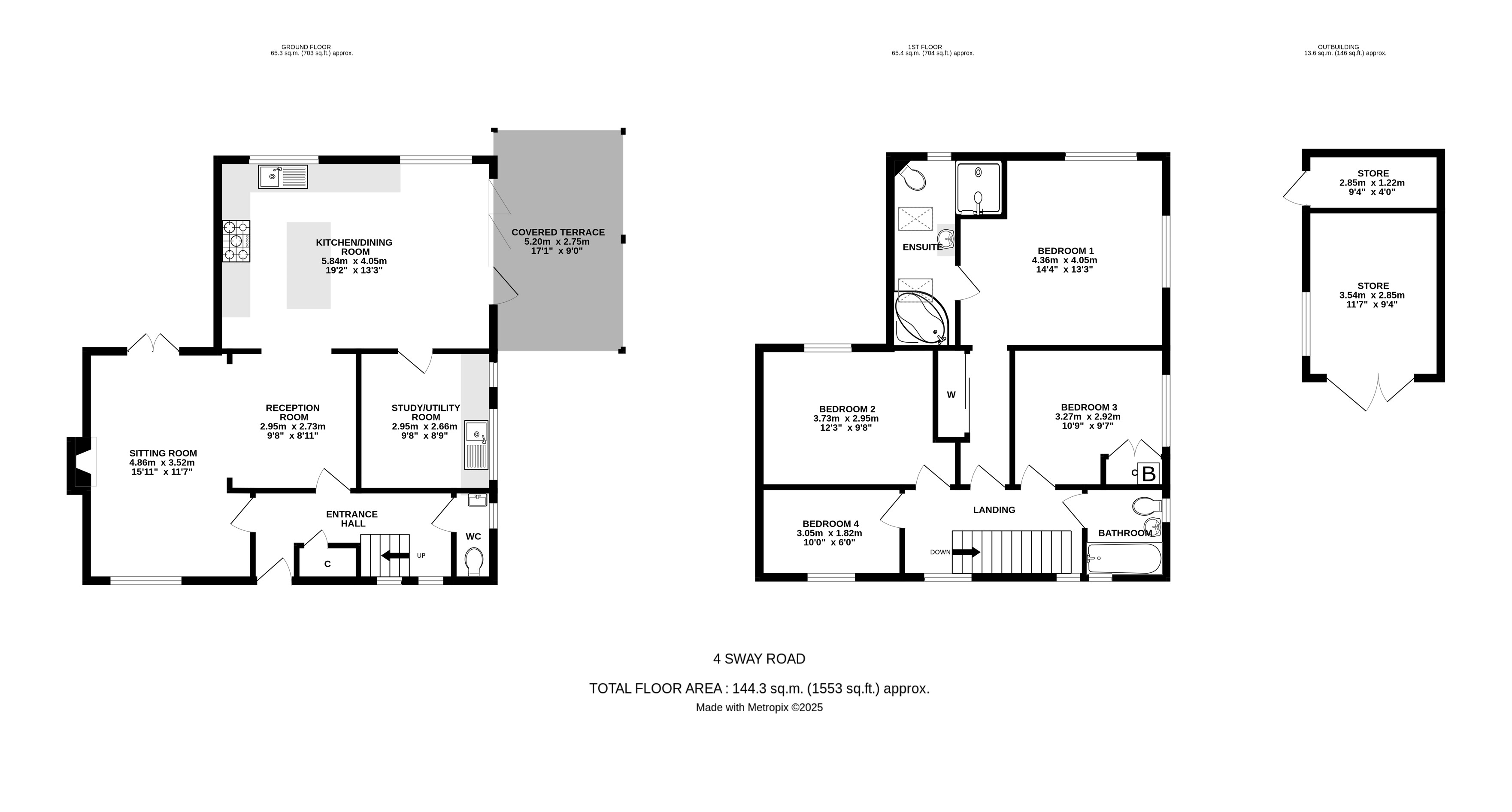
Front door leading into the entrance hall.  Cloaks cupboard. Stairs rising to the first floor landing.  Cloakroom with WC, wash hand basin and obscure window to the side aspect. Door from entrance hall to the left, leading into the sitting room. Feature fireplace, window to the front aspect, patio doors opening out to the rear. Open plan to the second reception room, which has a door leading back to the entrance hall and an opening through to the spacious kitchen/dining room.  

The kitchen/dining room is a real feature of this property, with a comprehensive range of floor and wall mounted cupboards, incorporating wine bottle storage, and base drawer units, with inset single bowl and drainer sink unit with mixer tap over and tiled splashbacks. Space for Range style cooker, with extractor hood over. Island with matching cupboards and drawer units. Space for tall fridge freezer. Space and plumbing for washing machine. Space for under counter wine fridge. Tiled floor and inset ceiling spotlights. Two windows to the rear aspect and bi-folding doors to the side aspect opening out to the covered terrace area and garden. Ample space for dining table and chairs. Door from dining area into the study/utility room which has a single drainer sink unit, cupboard units, space for under counter appliance and two windows to the side aspect. 

First floor landing with two windows to the front aspect. Dual aspect master bedroom suite with built-in wardrobe with sliding doors, windows to the side and rear aspect and door into the en-suite bathroom which has a corner bath, separate shower cubicle, WC, wash hand basin with vanity storage cupboard under and light-up mirror above, heated towel rail, window to the rear aspect and and two velux roof lights.  Bedroom two window to the rear aspect. Bedroom three with window to the side aspect and airing cupboard housing the wall mounted gas fired central heating boiler. Bedroom four with window to the front aspect. Family bathroom comprising of a panelled bath unit with mixer shower and glass shower screen, WC, wall hung wash hand basin with mixer tap and obscure windows to the side and front aspect.

To the front of the property, there is a wooden picket fence to all boundaries with a path leading up to the front door, and continues round to the side of the property. There are areas of lawn to either side of the path with various mature shrubs and plants. To the rear, the wooden constructed covered terrace area leading out from the bi-fold doors in the kitchen/dining room is a real feature of the garden and provides ample room for patio furniture, BBQ etc with outdoor lighting, making this an all year round usable entertaining space.  There is a paved ramped area leading up to the raised lawn, which fills the remainder of the garden and there are various plants, shrubs and trees. In one corner of the garden is a large store/workshop with double doors, window and a separate adjoining smaller store room to the rear. 

The property is conveniently located within a short level walk of Brockenhurst village centre, in the heart of the New Forest, close to shops and amenities. The village offers a mainline railway station with direct links to London Waterloo in approximately 90 minutes. To the north is the village of Lyndhurst and Junction 1 of the M27 motorway which links to the M3, giving access to London. The nearby Georgian market town of Lymington has many independent shops, a picturesque quay, deep water marinas, and sailing clubs. Lymington has numerous highly regarded restaurants and designer boutiques and is surrounded by the outstanding natural beauty of the New Forest National Park.


Location


Floorplan

Floorplan

EPC

EPC for Sway Road, Brockenhurst, Hampshire

Fells Gulliver New Forest

125 High Street
Lymington
Hampshire
SO41 9AQ