Sutton Place, Brockenhurst, Hampshire

3 bedroom Semi-detached house Under Offer

£525,000

  • 3 bedroom
  • 1 bathroom
  • 2 reception

Key Features

  • Open plan kitchen/dining room
  • Sitting room, open plan to the dining room/kitchen
  • Cloakroom
  • Large ground floor family room
  • First floor family bathroom
  • Three first floor bedrooms
  • Garage in nearby block
  • Beautifully presented throughout
  • Located within a short walk of the village centre, shops, the local Junior School and popular College
  • Low maintenance rear garden
  • EPC Rating: D
  • Planning permission granted for a two storey side extension

Description

This delightful three bedroom end terrace house benefits from well proportioned and well presented living accommodation, a low maintenance rear garden and a garage in a nearby block. 

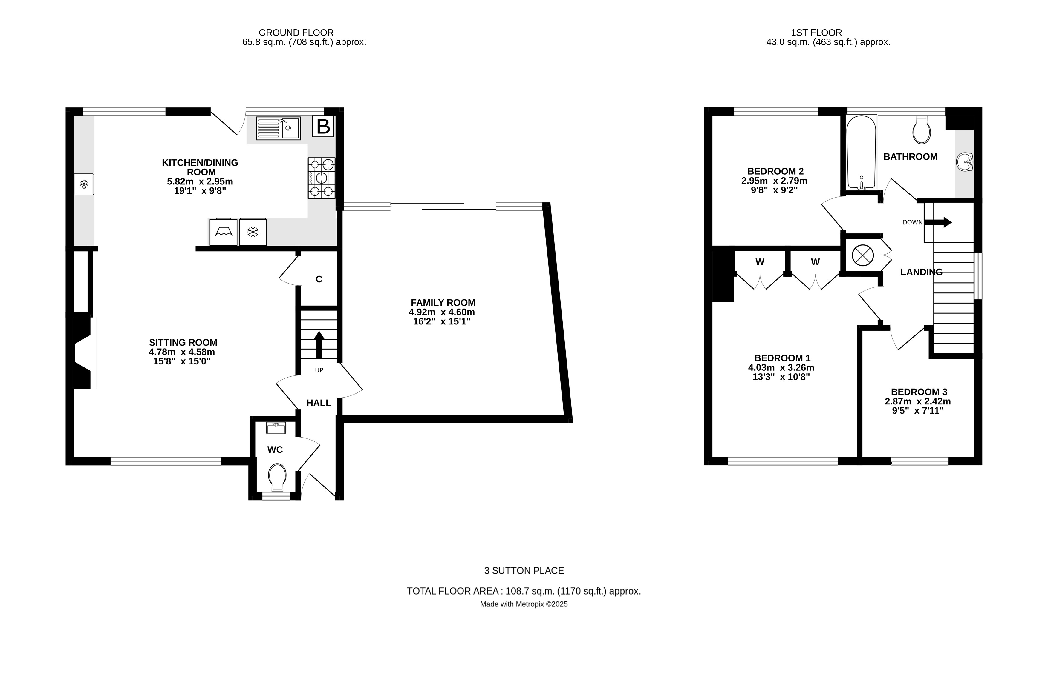
Front door leading into the porch. Inner door leading into the hallway, with stairs rising to the first floor. Cloakroom with WC, wash hand basin with vanity storage under, tiled floor, part tiled walls and obscure window to the front aspect. Door to the right into the large family room/sun room which has sliding patio doors leading out to the rear garden. From the hallway, door to the left leading into the L-shaped open plan living dual aspect accommodation, comprising of the sitting room, dining area and kitchen. The sitting room has a chimney breast with inset wood burner and window to the front aspect. This room continues through to the dining area, which has space for dining table and chairs, a window to the rear aspect and floor mounted cupboard units, matching the kitchen units, with wooden worktop over and integrated wine fridge. The kitchen has a comprehensive range of floor and wall mounted cupboard and drawer units with wooden worktop, inset stainless steel single drainer sink unit with mixer tap with flexi-hose, with tiled splashbacks. Integral dishwasher, space for six ring range cooker with extractor hood above. Space for washing machine and tumble dryer above, space for tall fridge freezer. Wall mounted gas fired central heating boiler. Window and door to the rear aspect. 

First floor landing with window to the side aspect, airing cupboard and hatch giving access to the loft space, which has a light and is partially boarded. Master bedroom with range of built-in wardrobes and window to the front aspect. Bedroom two with window to the rear aspect. Bedroom three with window to the front aspect. The family bathroom is a good size and has a suite comprising of a panelled bath unit with shower over and shower screen. Range of built-in vanity cupboard units with inset wash hand basin with mixer tap. Tiled walls, heated towel rail and obscure window to the rear aspect. 

Outside to the front of the property, there is an open plan area of lawn with path leading up the middle to the front door. There is small shingled border area adjacent to the living room and small hedge.  There is a useful bin store and additional log store to the right of the front door.  

The rear garden has been mainly decked for ease of maintenance, with ample room for patio furniture. There is also an area of decking, bark and lawn adjacent to the family room, with various mature plants/shrubs and a raised wooden planter.  There is a pedestrian gate to the rear of the garden and a single garage in a nearby block which is numbered accordingly. 

N.B. Planning Permission has been granted for a two storey side extension (see photo showing proposed plan)

The property is conveniently located within a short level walk of Brockenhurst village centre, in the heart of the New Forest, close to shops and amenities. The village offers a mainline railway station with direct links to London Waterloo in approximately 90 minutes. To the north is the village of Lyndhurst and Junction 1 of the M27 motorway which links to the M3, giving access to London. The nearby Georgian market town of Lymington has many independent shops, a picturesque quay, deep water marinas, and sailing clubs. Lymington has numerous highly regarded restaurants and designer boutiques and is surrounded by the outstanding natural beauty of the New Forest National Park.


Location


Floorplan

Floorplan

EPC

EPC for Sutton Place, Brockenhurst, Hampshire

Fells Gulliver New Forest

125 High Street
Lymington
Hampshire
SO41 9AQ