Greenways Road, Brockenhurst, Hampshire

4 bedroom Terraced House for sale

£525,000

  • 4 bedroom
  • 2 bathroom
  • 1 reception

Key Features

  • Offered for sale with no forward chain
  • Downstairs cloakroom
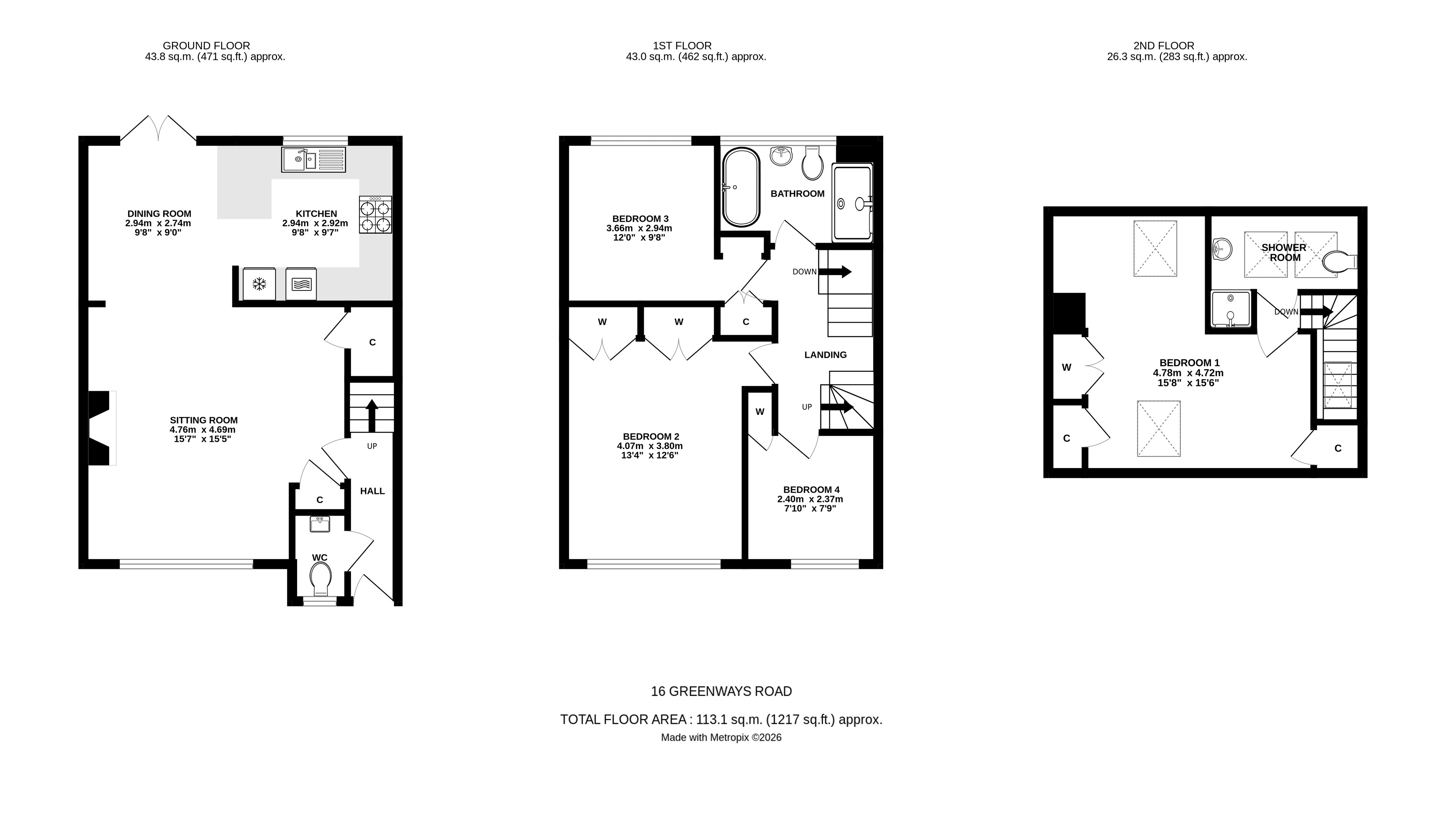
  • Accommodation arranged over three floors
  • Open plan sitting/dining room through to Kitchen
  • EPC Rating: D
  • Ideally located with easy access to the Forest
  • Garage located in nearby block
  • Within walking distance of Brockenhurst village centre
  • Large second floor master bedroom with en-suite shower room and built-in wardrobes

Description

Offered for sale with no forward chain, this well presented mid-terrace house features an open plan sitting/dining room, a family bath/shower room, and an additional separate shower room for added convenience. Ideally situated within easy reach of the mainline station and village amenities, the property is perfectly suited as a comfortable and well positioned home

The entrance hall includes a cloakroom and stairs leading to the first floor. The cloakroom is fitted with a low-level WC, a hand wash basin with cupboard below, a mirror with light above, laminate flooring, and a ladder-style chrome radiator. An obscure front aspect window provides natural light. The property benefits from Georgian-style windows throughout. From the hall, you enter the open plan sitting and dining room. This bright space features a front aspect window, a feature fireplace, and useful storage including an under stairs cupboard. The dining area has double doors opening onto the rear garden, while a square archway leads into the kitchen. The kitchen is fitted with modern wall and base units, roll top work surfaces, and a breakfast bar. There is a rear aspect window, tiled splashbacks, and laminate flooring. Integrated appliances include a dishwasher and a Smeg split-level oven. There is also space and plumbing for a washing machine and an upright fridge freezer. A cupboard houses the Vaillant boiler, which serves the central heating and hot water.

The first floor landing provides stairs rising to the second floor. Bedroom two is a spacious double room, fitted with double wardrobes and enjoying a front aspect window. Bedroom three benefits from a rear aspect window overlooking the garden, while bedroom four features a front aspect window and fitted wardrobes. The family bathroom is well appointed, featuring a large walk-in shower with fixed head and recessed shelving. The white suite comprises a panelled bath with mixer tap and shower attachment, hand wash basin, and low-level WC. Additional features include a recessed mirror fronted cabinet with tiled shelf beneath and an upright ladder style chromium radiator. 

The second floor is dedicated to the impressive principal bedroom, a light-filled space enhanced by Velux windows and complemented by an extensive range of built-in wardrobes and eaves storage cupboards. The bedroom is served by a stylish en suite shower room, featuring a fully tiled shower cubicle with shower unit and extractor fan, along with a hand wash basin set within a vanity cupboard with tiled splashback, and a low-level WC.

The front garden is laid to lawn with a border immediately to the front of the property. Paviour pathway leads to the front door. The rear garden is mainly paved with decked area to the bottom corner, borders. Store Shed. Power, light and water tap. The garden is enclosed by walling and fencing with rear pedestrian gate. The garage is in a nearby block.  

The property is conveniently located within a short level walk of Brockenhurst village centre, in the heart of the New Forest, close to shops and amenities. The village offers a mainline railway station with direct links to London Waterloo in approximately 90 minutes. To the north is the village of Lyndhurst and Junction 1 of the M27 motorway which links to the M3, giving access to London. The nearby Georgian market town of Lymington has many independent shops, a picturesque quay, deep water marinas, and sailing clubs. Lymington has numerous highly regarded restaurants and designer boutiques and is surrounded by the outstanding natural beauty of the New Forest National Park.


Location


Floorplan

Floorplan

EPC

EPC for Greenways Road, Brockenhurst, Hampshire

Fells Gulliver Estate Agents

125 High Street
Lymington
Hampshire
SO41 9AQ

Similar Properties

Sutton Place, Brockenhurst, Hampshire
Under Offer

Sutton Place, Brockenhurst, Hampshire

3 Bed Semi-detached house Under Offer
Guide price £525,000
Partridge Road, Brockenhurst, Hampshire
Under Offer

Partridge Road, Brockenhurst, Hampshire

5 Bed Detached house Under Offer
Guide price £1,235,000